
Ngôi phà phố 2 tầng mái thái ở quận 2 có thiết kế đơn giản nhưng không kém phần tinh tế, tạo nên một phong cách hiện đại nhưng hết sức gần gũi cho người ở.
Ngôi phà phố 2 tầng mái thái ở quận 2 có thiết kế đơn giản nhưng không kém phần tinh tế, tạo nên một phong cách hiện đại nhưng hết sức gần gũi cho người ở.
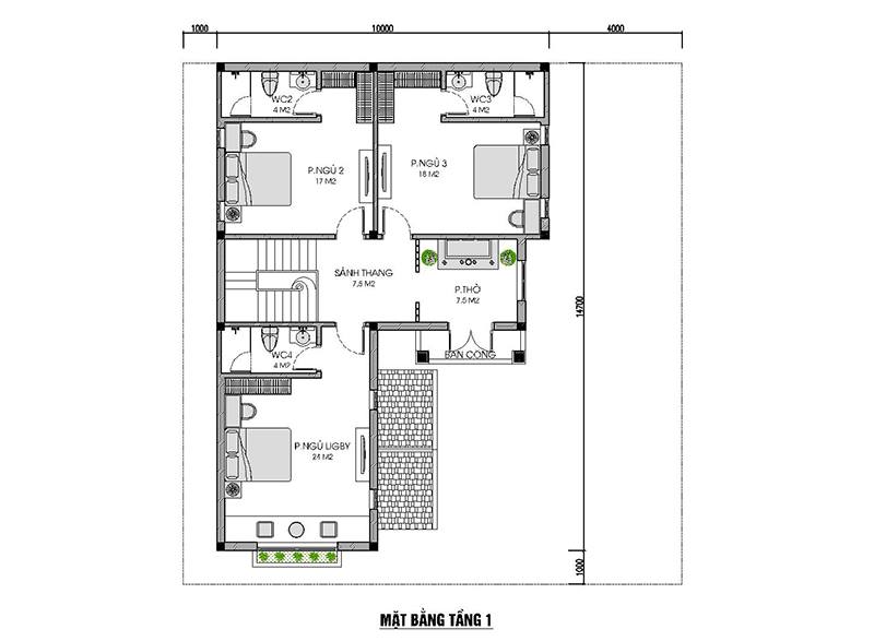
Ngôi nhà phố có 1 trệt 1 Lầu tại quận 2, nhà chỉ ở mức trung bình với diện tích 4,2m x 16,5m và có phần tóp hậu. Tuy nhiên sau khi qua quá trình thi công và thiết kế của độ ngũ KTS GreenHome thì ngôi nhà hoàn chỉnh lại có hình vuông vức. Nghệ thuật kết hợp cùng phong thủy đã đòi hỏi GreenHome xử lý cắt để ngôi nhà của khách hàng có thể trở nên vuông vắn dù miếng đất đặt nhà không hề đẹp.

Nhìn từ bên ngoài, thiết kế này lấy màu sắc chủ đạo là màu trắng, kết hợp cùng những nét chấm phá từ màu đen và nâu đất trên cửa, hay trên mái ngói thái, kết hợp cùng với vườn cây xanh đã giúp cho phần ngoại thất của ngôi nhà trở nên hoàn hảo hơn bao giờ hết.
Cổng nhà làm bằng gan sơn giả đồng, với 2 màu đen đồng cổ điển nổi bật trên màu trắng của nhà làm cho tổng thể càng tăng thêm vẻ quý phái.

Nội thất bên trong sử dụng chất liệu gỗ là chủ yếu, thể hiện được rằng chủ nhân của ngôi nhà là một người khá ưa chuộng nét đẹp của những điều cổ điển. Nhưng chất liệu gỗ cổ điển kết hợp cùng các phụ kiện như đèn treo, hồ cá hay tủ gỗ một cách hài hòa lại làm bật lên được sự sang trọng và cũng không kém phần hiện đại cho nội thất tổng thế của căn nhà.
Ở phòng ngủ, GreenHome không bám sát thiết kế và màu sắc của nội thất ở phòng khách và phòng ăn, chúng tôi lại ưu tiên những màu sắc có thể khiến cho gia chủ cảm thấy dễ chịu hơn khi tận hưởng không gian riêng của mình. Phòng ngủ phải là một nơi có màu sắc, thiết kế riêng tư và làm bật lên được tính cách cũng như sở thích của chủ nhân nó.
Không quá hiện đại và không quá cổ điển, nhưng GreenHome tin rằng thiết kế này đã giúp cho gia đình chú Quân ở quận 2 có thể hài lòng và thỏa mãn với ngôi nhà của mình - một không gian sống thoáng mát, hiện đại trên những mảng chấm phá đầy cổ điển.

Đăng kí email để nhận các tin tức mới nhất của chúng tôi.
SĐT:
Email:
Địa chỉ:
